$585,000 | Sold

Description


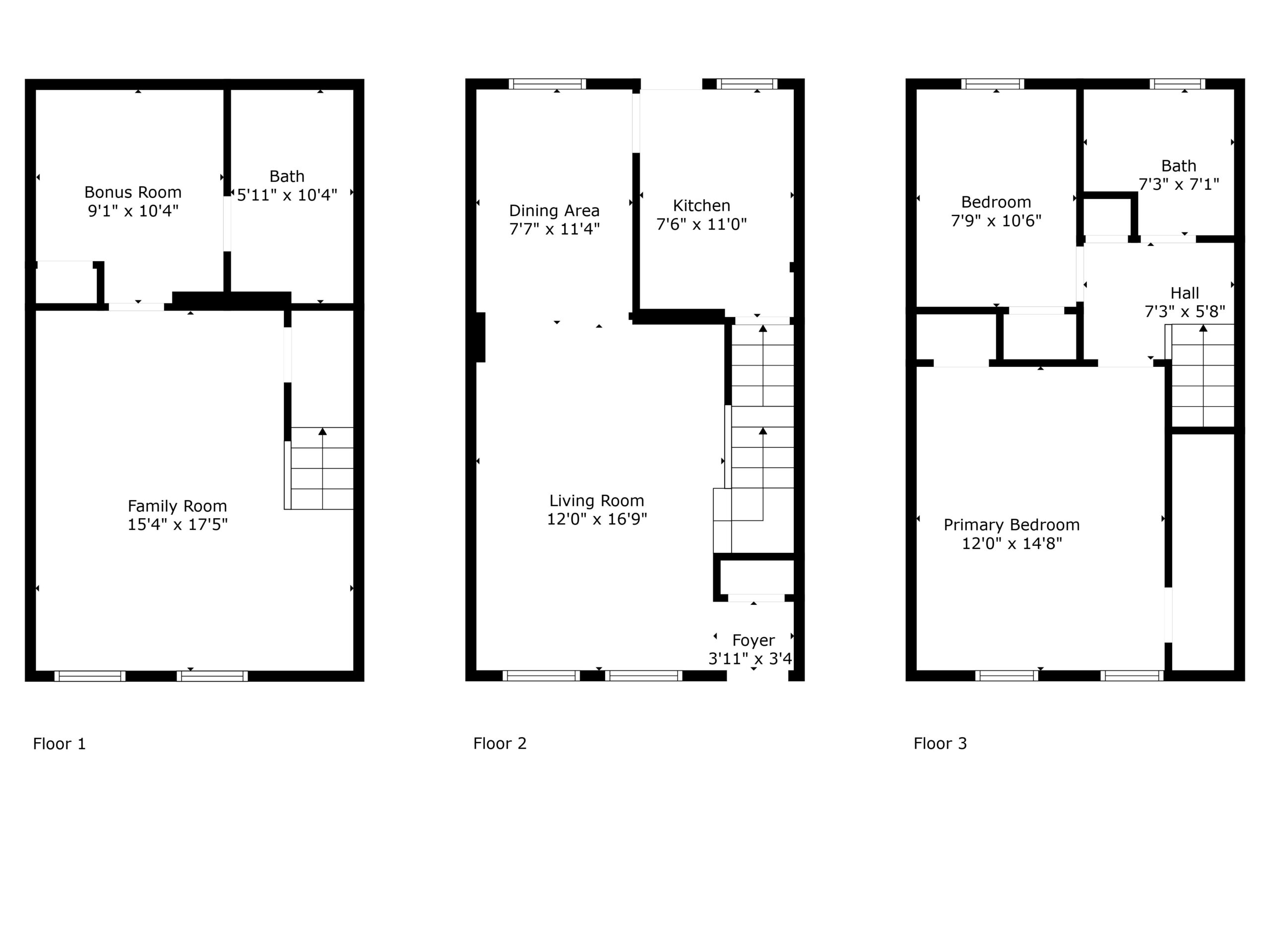
Welcome home to this charming Clarendon model in the sought after Fairlington Arbors community! This 2 bedroom, 2 bath townhouse-style condo provides the perfect opportunity to obtain tranquility, convenience and the ideal location within this historic neighborhood. The main level boasts an open concept living room & dining room (hardwood floors under carpet!) and a bright, sun filled kitchen featuring white wood cabinets and convenient access to a beautifully landscaped private patio—perfect for outdoor entertaining. Upstairs, you’ll find two bedrooms with hardwood floors and a large hall bathroom. The fully finished lower level offers a versatile family/recreation room, an office/bonus room, and an additional full bath with a washer and dryer. 1 assigned parking space (#207) for easy in and out and ample guest & street parking. A wonderful opportunity for comfortable living in a serene setting!

Bedrooms
2
Bathrooms
2
Property Type
Townhome
Neighborhood
Fairlington Arbor
Taxes Per Year
$6,087 / 2024
SQFT
1,500

Let's Talk Buying


Ready to find your dream home? Meet with us today to get started!

Reach Out

Want more information?

Just complete the form and we'll get right back to you.

  • This field is for validation purposes and should be left unchanged.